Toggle navigation
(+356) 2164 9500
(+356) 9998 6779
info@sensaramalta.com
Head Office - Sensara Malta
Triq Santa Marija, Safi
09.00 to 19.00 hrs
Monday to Saturday
Home
Properties
Sales
Rentals
Foreign
About us
Services
Contacts
Send your request
Previous
Next
270,000 €
CLICK HERE for DETAILED PHOTOS
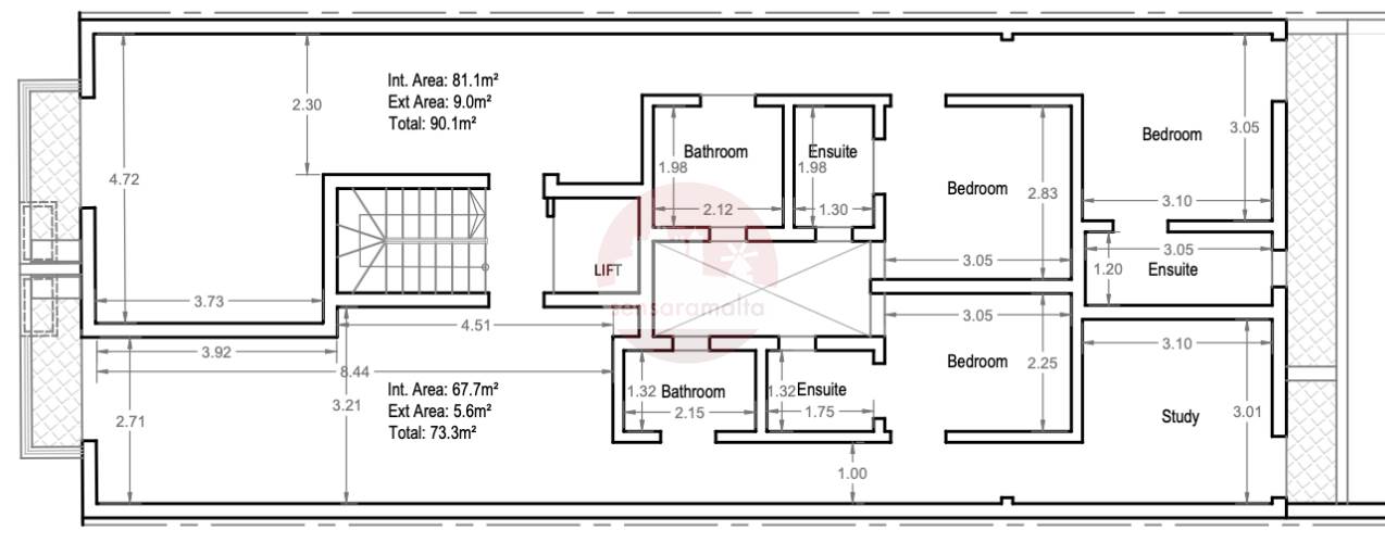
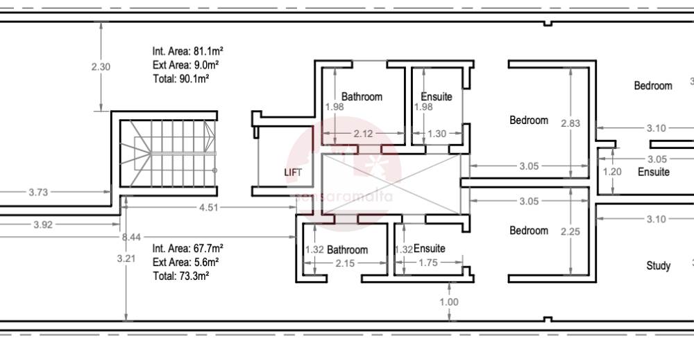
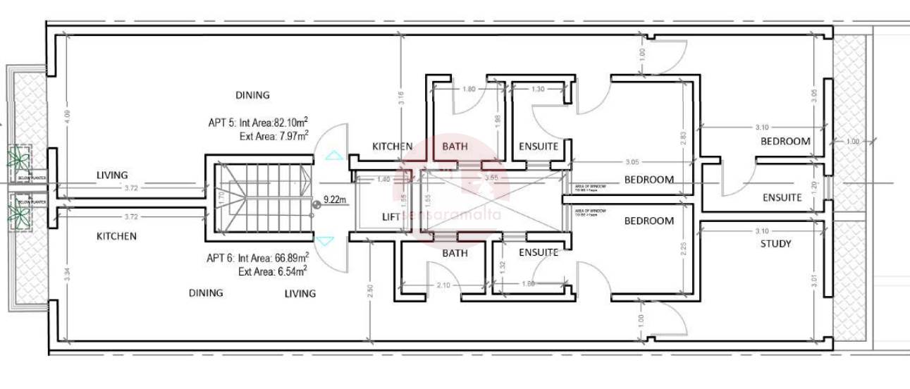
Pieta - 3rd Floor 1 BD + Study Apt Fully finished
2 bedroom apartment for sale • Pieta
New development of 9 units is currently under construction, in a good area in Pieta - ideal for prospective buyers looking for a fully finished property.
This apartment consists of a 1-bedroom plus Study on the 3rd floor, of which the main bedroom is served with ensuit, , master bathroom, open plan overlooking front balcony, and also a back balcony.
The property is being offered fully finished, including bathrooms and internal doors.
Freehold .
Rooms and Features
Code
V022069
Locality
Pieta
Property type
2 bedroom apartment
Price
270,000 €
Locals
1
Bedrooms
2
Bathrooms
2
Sqm
74
Floor
3.5
Energetic class
Not applicable
Property Conditions
New
Photos • Floorplans • Video
Photos
Options
Print Property sheet
Send property sheet by mail
Schedule a visit
RealEstate Brokers
Schembri Maria Pawla
+356 7732 8183
+356 9998 6779
+356 9998 6775
pawla@sensaramalta.com
Information request
Name *
Phone *
E-mail *
Request Details *
I authorize the processing of my personal data according Regolamento UE n. 679/2016 -
Privacy Policy
I authorize the processing of data for marketing purposes, promotional activities, commercial offers and market surveys.
Send
Share on
We also recommend
for Sale
Mellieha – Ghadira 2-Bedroom Apartment with Sea Views
388,000 €
for Sale
Gharb Gozo - 3 Bedroom Furnished Apt + optional Garage
318,000 €
for Sale
Qormi - 2 Bedroom Apartment On Plan
225,000 €
Keep default settings X
Use of cookies
This site uses cookies. Our (own) cookies and those of our Partners (third party cookies) are used to offer you a unique experience with us. For this reason, together with our partners, we collect and process non-sensitive information (such as the identifier of your device or the pages you visit).
At any time you can delete, modify or verify the information you share in
Cookie preference
or in our
Cookie Policy
and
Privacy Policy
.
Necessary
Functional
Profiling
Analytics
Accept all
Decline all
Accept selected
Cookie preference