Toggle navigation
(+356) 2164 9500
(+356) 9998 6779
info@sensaramalta.com
Head Office - Sensara Malta
Triq Santa Marija, Safi
09.00 to 19.00 hrs
Monday to Saturday
Home
Properties
Sales
Rentals
Foreign
About us
Services
Contacts
Send your request
Previous
Next
277,000 €
CLICK HERE for DETAILED PHOTOS
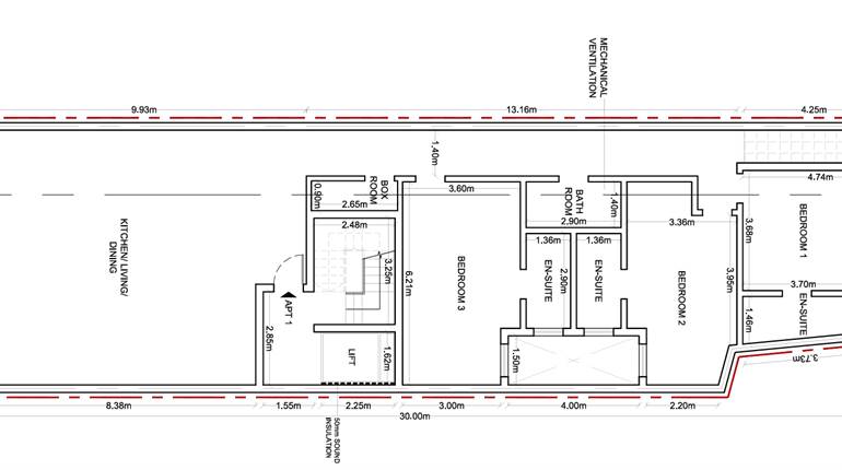
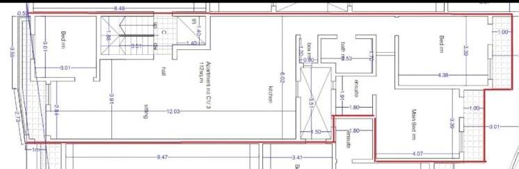
Tarxien β 3 Bedroom Apartment (On Plan) 2nd floor
3+ bedroom apartment for sale • Tarxien
Tarxien β 3 Bedroom Apartment (On Plan)
π Estimated Completion: Mid 2026
Spacious 3-bedroom apartment situated in a modern block of 11 units, with only 3 units per floor. This property offers a well-designed layout featuring:
A large open-plan kitchen/living/dining area
Front and back terraces for ample natural light and outdoor space
Master bedroom with ensuite
Main bathroom
Finished excluding bathrooms and internal doors
Served with lift for easy access
Ideal for families or as a rental investment. Located in a quiet yet central area of Tarxien.
Rooms and Features
Code
V021891
Locality
Tarxien
Property type
3+ bedroom apartment
Price
277,000 €
Locals
1
Bedrooms
3
Bathrooms
2
Sqm
122
Balconies
2
Energetic class
Not applicable
Property Conditions
Under Construction
Furniture
Not Furnished
Kitchen
Open Kitchen
Accessories:
Elevator, Double Glazing
Photos • Floorplans • Video
Photos
Options
Print Property sheet
Send property sheet by mail
Schedule a visit
RealEstate Brokers
Grima Keith
+356 7902 0587
+356 9998 6775
+356 9998 6779
keith@sensaramalta.com
Information request
Name *
Phone *
E-mail *
Request Details *
I authorize the processing of my personal data according Regolamento UE n. 679/2016 -
Privacy Policy
I authorize the processing of data for marketing purposes, promotional activities, commercial offers and market surveys.
Send
Share on
We also recommend
for Sale
Fgura - 3 Bedroom Apartment Fully Finished (On Plan)
400,000 €
for Sale
Rabat - 3 Bedroom Larger Than Usual Finished Apartment On Plan
563,000 €
for Sale
Zabbar - 3 Bedroom 1st Floor Finished Apartment On Plan
322,500 €
Keep default settings X
Use of cookies
This site uses cookies. Our (own) cookies and those of our Partners (third party cookies) are used to offer you a unique experience with us. For this reason, together with our partners, we collect and process non-sensitive information (such as the identifier of your device or the pages you visit).
At any time you can delete, modify or verify the information you share in
Cookie preference
or in our
Cookie Policy
and
Privacy Policy
.
Necessary
Functional
Profiling
Analytics
Accept all
Decline all
Accept selected
Cookie preference