Toggle navigation
(+356) 2164 9500
(+356) 9998 6779
info@sensaramalta.com
Head Office - Sensara Malta
Triq Santa Marija, Safi
09.00 to 19.00 hrs
Monday to Saturday
Home
Properties
Sales
Rentals
Foreign
About us
Services
Contacts
Send your request
Previous
Next
358,500 €
CLICK HERE for DETAILED PHOTOS
St Paul's Bay - 2 Bedroom Highly Finished Apt
2 bedroom apartment for sale • San Pawl il-Bahar
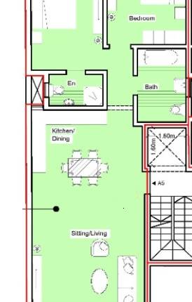
Just within walking distance from the promenade in St Pauls Bay and all amenities comes a 2-bedroom apartment laid on level 3, which is being offered on plan. The estimated completion will be in April 2025 and will be highly finished, including internal doors, bathrooms, and lift.
It comprises a kitchen, living, and dining area, overlooking a balcony. Further in one finds a main bathroom, two double bedrooms, one of which has an ensuite and balcony, and another balcony. Freehold
Internal 93m²
Ext. 15.75m²
Rooms and Features
Code
V021576
Locality
San Pawl il-Bahar
Property type
2 bedroom apartment
Price
358,500 €
Locals
1
Bedrooms
2
Sqm
93
Energetic class
Nondescript
Photos • Floorplans • Video
Photos
Options
Print Property sheet
Send property sheet by mail
Schedule a visit
RealEstate Brokers
Office Office
+356 9998 6779
+356 9990 6202
+356 2164 9500
info@sensaramalta.com
Information request
Name *
Phone *
E-mail *
Request Details *
I authorize the processing of my personal data according Regolamento UE n. 679/2016 -
Privacy Policy
I authorize the processing of data for marketing purposes, promotional activities, commercial offers and market surveys.
Send
Share on
We also recommend
for Sale
Ta' Xbiex - 1st Floor 2 Bedroom Finished Apartment + Yard
350,000 €
for Sale
Xewkija Gozo - Unconverted Terraced Houses
285,000 €
for Sale
Zabbar - Under Construction Ground Floor 2 Bedroom Fully Finished Apartment + Yard
282,000 €
Keep default settings X
Use of cookies
This site uses cookies. Our (own) cookies and those of our Partners (third party cookies) are used to offer you a unique experience with us. For this reason, together with our partners, we collect and process non-sensitive information (such as the identifier of your device or the pages you visit).
At any time you can delete, modify or verify the information you share in
Cookie preference
or in our
Cookie Policy
and
Privacy Policy
.
Necessary
Functional
Profiling
Analytics
Accept all
Decline all
Accept selected
Cookie preference