Toggle navigation
(+356) 2164 9500
(+356) 9998 6779
info@sensaramalta.com
Head Office - Sensara Malta
Triq Santa Marija, Safi
09.00 to 19.00 hrs
Monday to Saturday
Home
Properties
Sales
Rentals
Foreign
About us
Services
Contacts
Send your request
Previous
Next
385,000 €
CLICK HERE for DETAILED PHOTOS
Mgarr - 3 Bedroom Finished Apartment
3+ bedroom apartment for sale • Mgarr
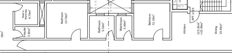
Located in the peaceful village of Mgarr, this ready built, well lit three-bedroom apartment offers a modern and comfortable living space. Finished to high standards open plan kitchen/dining/living and a front terrace with large doors that allow ample natural light. This apartment includes three generously sized bedrooms, with the main enjoying an ensuite , along with a stylish main bathroom. With it's bright interiors and convenient location close to all amenities, this apartment will make a perfect home.
Rooms and Features
Code
V021568
Locality
Mgarr
Property type
3+ bedroom apartment
Price
385,000 €
Locals
1
Bedrooms
3
Bathrooms
2
Sqm
119
Balconies
2
Floor
2
Energetic class
Not applicable
Property Conditions
New
Photos • Floorplans • Video
Photos
Options
Print Property sheet
Send property sheet by mail
Schedule a visit
RealEstate Brokers
Kitney Claudia
+356 9940 4319
+356 9998 6779
+356 9998 6775
claudia@sensaramalta.com
Information request
Name *
Phone *
E-mail *
Request Details *
I authorize the processing of my personal data according Regolamento UE n. 679/2016 -
Privacy Policy
I authorize the processing of data for marketing purposes, promotional activities, commercial offers and market surveys.
Send
Share on
We also recommend
for Sale
Sannat Gozo - 3 or 2 Bedroom Apartments
165,000 €
for Sale
Xlendi Gozo - 3 Bedroom Seaview Furnished Apartment
410,000 €
for Sale
Ghajnsielem Gozo - Unconverted Terraced House in UCA
595,000 €
Keep default settings X
Use of cookies
This site uses cookies. Our (own) cookies and those of our Partners (third party cookies) are used to offer you a unique experience with us. For this reason, together with our partners, we collect and process non-sensitive information (such as the identifier of your device or the pages you visit).
At any time you can delete, modify or verify the information you share in
Cookie preference
or in our
Cookie Policy
and
Privacy Policy
.
Necessary
Functional
Profiling
Analytics
Accept all
Decline all
Accept selected
Cookie preference