Toggle navigation
(+356) 2164 9500
(+356) 9998 6779
info@sensaramalta.com
Head Office - Sensara Malta
Triq Santa Marija, Safi
09.00 to 19.00 hrs
Monday to Saturday
Home
Properties
Sales
Rentals
Foreign
About us
Services
Contacts
Send your request
Previous
Next
374,000 €
CLICK HERE for DETAILED PHOTOS
Mosta, Already Built ** Finished 3 Bedroom Apartment with terrace & balcony ** optional Garages
3+ bedroom apartment for sale • Mosta
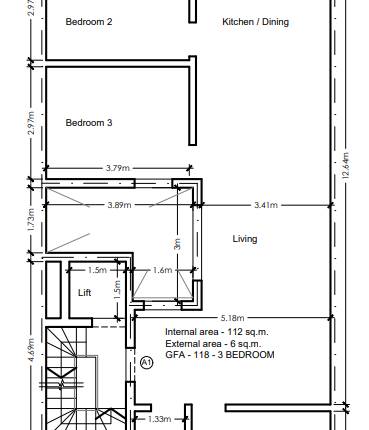
In a desirable residential area in Mosta comes this already built 3 bedroom apartment being offered finished excluding bathrooms and internal doors.
This second-floor apartment measures circa 107 sqm and comprises an open plan kitchen/living/dining overlooking its front terrace, guest bathroom, 3 bedrooms of which the main with an ensuite.
Optional garages are available starting from Euros 44,000.
Rooms and Features
Code
V021357
Locality
Mosta
Property type
3+ bedroom apartment
Price
374,000 €
Locals
1
Bedrooms
3
Bathrooms
2
Sqm
107.2
Floor
2
Energetic class
Not applicable
Property Conditions
Under Construction
Photos • Floorplans • Video
Photos
Options
Print Property sheet
Send property sheet by mail
Schedule a visit
RealEstate Brokers
Schembri Maria Pawla
+356 7732 8183
+356 9998 6779
+356 9998 6775
pawla@sensaramalta.com
Information request
Name *
Phone *
E-mail *
Request Details *
I authorize the processing of my personal data according Regolamento UE n. 679/2016 -
Privacy Policy
I authorize the processing of data for marketing purposes, promotional activities, commercial offers and market surveys.
Send
Share on
We also recommend
for Sale
Mosta, Already Built 2nd floor 3 Bedroom Apartment with Terrace and Balconies
440,000 €
for Sale
Safi - 3 Bedroom Finished Apartment On Plan
373,500 €
for Sale
Mosta - 210sqm 2nd Floor 3 Double Bedroom Finished Apartment + Terrace
535,000 €
Keep default settings X
Use of cookies
This site uses cookies. Our (own) cookies and those of our Partners (third party cookies) are used to offer you a unique experience with us. For this reason, together with our partners, we collect and process non-sensitive information (such as the identifier of your device or the pages you visit).
At any time you can delete, modify or verify the information you share in
Cookie preference
or in our
Cookie Policy
and
Privacy Policy
.
Necessary
Functional
Profiling
Analytics
Accept all
Decline all
Accept selected
Cookie preference