Toggle navigation
(+356) 2164 9500
(+356) 9998 6779
info@sensaramalta.com
Head Office - Sensara Malta
Triq Santa Marija, Safi
09.00 to 19.00 hrs
Monday to Saturday
Home
Properties
Sales
Rentals
Foreign
About us
Services
Contacts
Send your request
Previous
Next
280,000 €
CLICK HERE for DETAILED PHOTOS
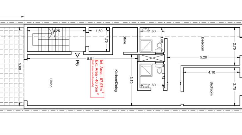
Xewkija - 2 Bedroom Penthouse On Plan
Penthouse for sale • Xewkija Gozo
Squarish layout Penthouse located in Xewkija in a block of only 9 units. This Penthouse comprises of a kitchen/dining/living with a front terrace, two double bedrooms both with ensuite and a main bathroom. This property is being offered in shell form allowing you to finish it to your own taste with all common parts ready. Estimate completion date is December 2025.
Rooms and Features
Code
V021303
Locality
Xewkija Gozo
Property type
Penthouse
Price
280,000 €
Locals
1
Bedrooms
2
Bathrooms
3
Sqm
165.3
Floor
3
Energetic class
Not applicable
Property Conditions
Under Construction
Photos • Floorplans • Video
Photos
Options
Print Property sheet
Send property sheet by mail
Schedule a visit
RealEstate Brokers
Xiberras Joanie
+356 9985 2678
+356 9998 6779
+356 9998 6775
joanie.gozo@sensaramalta.com
Information request
Name *
Phone *
E-mail *
Request Details *
I authorize the processing of my personal data according Regolamento UE n. 679/2016 -
Privacy Policy
I authorize the processing of data for marketing purposes, promotional activities, commercial offers and market surveys.
Send
Share on
We also recommend
for Sale
Zurrieq - 2 bedroom Finished Penthouse On plan (140sqm) & Optional garage
430,000 €
for Sale
Marsa - 2 Bedroom Penthouse Shell Form On Plan
230,000 €
for Sale
Kirkop - 2 Bedroom Fully Finished Duplex Penthouse On Plan
485,000 €
Keep default settings X
Use of cookies
This site uses cookies. Our (own) cookies and those of our Partners (third party cookies) are used to offer you a unique experience with us. For this reason, together with our partners, we collect and process non-sensitive information (such as the identifier of your device or the pages you visit).
At any time you can delete, modify or verify the information you share in
Cookie preference
or in our
Cookie Policy
and
Privacy Policy
.
Necessary
Functional
Profiling
Analytics
Accept all
Decline all
Accept selected
Cookie preference