Toggle navigation
(+356) 2164 9500
(+356) 9998 6779
info@sensaramalta.com
Head Office - Sensara Malta
Triq Santa Marija, Safi
09.00 to 19.00 hrs
Monday to Saturday
Home
Properties
Sales
Rentals
Foreign
About us
Services
Contacts
Send your request
Previous
Next
205,000 €
CLICK HERE for DETAILED PHOTOS
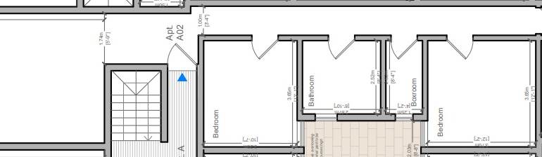
Xewkija - 3 Bedroom 3 Bathroom Apartment
3+ bedroom apartment for sale • Xewkija Gozo
Squarish layout Apartment located in Xewkija in a block of only 9 units. This apartment comprises of a kitchen/dining/living with a front terrace, three double bedrooms master with ensuite, main bathroom and another balcony. This property is being offered in shell form allowing you to finish it to your own taste with all common parts ready. Estimate completion date is December 2025.
Rooms and Features
Code
V021300
Locality
Xewkija Gozo
Property type
3+ bedroom apartment
Price
205,000 €
Locals
1
Bedrooms
3
Bathrooms
3
Sqm
169
Floor
1
Energetic class
Not applicable
Property Conditions
Under Construction
Photos • Floorplans • Video
Photos
Options
Print Property sheet
Send property sheet by mail
Schedule a visit
RealEstate Brokers
Xiberras Joanie
+356 9985 2678
+356 9998 6779
+356 9998 6775
joanie.gozo@sensaramalta.com
Information request
Name *
Phone *
E-mail *
Request Details *
I authorize the processing of my personal data according Regolamento UE n. 679/2016 -
Privacy Policy
I authorize the processing of data for marketing purposes, promotional activities, commercial offers and market surveys.
Send
Share on
We also recommend
for Sale
Ghajnsielem Gozo - 3 Bedroom Furnished Apartment + Backyard
298,000 €
for Sale
Fgura - 3 Bedroom Second Floor Finished Apartment Ready Built
295,000 €
for Sale
Birkirkara limits Of Iklin * Circa 119 1st Floor 3 Bedroom Apartment Finished and Optional Garage
340,000 €
Keep default settings X
Use of cookies
This site uses cookies. Our (own) cookies and those of our Partners (third party cookies) are used to offer you a unique experience with us. For this reason, together with our partners, we collect and process non-sensitive information (such as the identifier of your device or the pages you visit).
At any time you can delete, modify or verify the information you share in
Cookie preference
or in our
Cookie Policy
and
Privacy Policy
.
Necessary
Functional
Profiling
Analytics
Accept all
Decline all
Accept selected
Cookie preference