Toggle navigation
(+356) 2164 9500
(+356) 9998 6779
info@sensaramalta.com
Head Office - Sensara Malta
Triq Santa Marija, Safi
09.00 to 19.00 hrs
Monday to Saturday
Home
Properties
Sales
Rentals
Foreign
About us
Services
Contacts
Send your request
Previous
Next
880,000 €
CLICK HERE for DETAILED PHOTOS
Nadur - Newly Built House With Pool And Garage
Terraced house for sale • Nadur Gozo
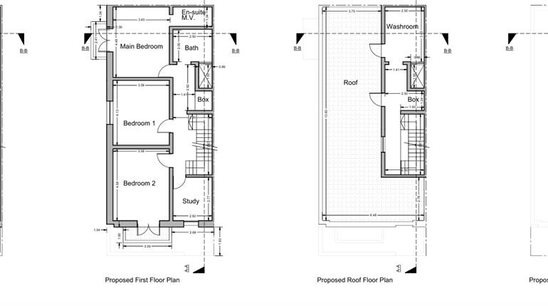
Discover this newly built house in Nadur. This property of circa 284sqm consists of a 5 car garage on the on the basement level served with a lift, on the first floor one finds an open plan kitchen/dining/living followed by a spacious outdoor with pool, four-bedrooms and four bathrooms and full private roof.
Rooms and Features
Code
V021244
Locality
Nadur Gozo
Property type
Terraced house
Price
880,000 €
Locals
1
Bedrooms
4
Bathrooms
5
Sqm
302
Energetic class
Not applicable
Property Conditions
New
Photos • Floorplans • Video
Photos
Options
Print Property sheet
Send property sheet by mail
Schedule a visit
RealEstate Brokers
Xiberras Joanie
+356 9985 2678
+356 9998 6779
+356 9998 6775
joanie.gozo@sensaramalta.com
Information request
Name *
Phone *
E-mail *
Request Details *
I authorize the processing of my personal data according Regolamento UE n. 679/2016 -
Privacy Policy
I authorize the processing of data for marketing purposes, promotional activities, commercial offers and market surveys.
Send
Share on
We also recommend
for Sale
Luqa - 3 Bedroom Terraced House + Street Level Garage + Office + Garden
680,000 €
for Sale
Marsa - 3 Bedroom Terraced House + Street Level Garage
450,000 €
for Sale
Rabat - Semi Detached T/House + Shell Form
720,000 €
Keep default settings X
Use of cookies
This site uses cookies. Our (own) cookies and those of our Partners (third party cookies) are used to offer you a unique experience with us. For this reason, together with our partners, we collect and process non-sensitive information (such as the identifier of your device or the pages you visit).
At any time you can delete, modify or verify the information you share in
Cookie preference
or in our
Cookie Policy
and
Privacy Policy
.
Necessary
Functional
Profiling
Analytics
Accept all
Decline all
Accept selected
Cookie preference