Toggle navigation
(+356) 2164 9500
(+356) 9998 6779
info@sensaramalta.com
Head Office - Sensara Malta
Triq Santa Marija, Safi
09.00 to 19.00 hrs
Monday to Saturday
Home
Properties
Sales
Rentals
Foreign
About us
Services
Contacts
Send your request
Previous
Next
183,000 €
CLICK HERE for DETAILED PHOTOS
Marsalforn - 1 Bedroom First Floor Apartment
1 bedroom apartment for sale • Marsalforn Gozo
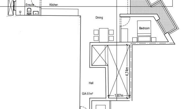
Discover this one-bedroom apartment in Marsalforn. This apartment consists of an open plan kitchen/dining/living, one-bedroom, main bathroom and a corner balcony. This apartment is still on plan and is estimate to be ready by end 2025. Optional garages are available at an extra price.
Rooms and Features
Code
V021232
Locality
Marsalforn Gozo
Property type
1 bedroom apartment
Price
183,000 €
Locals
1
Bedrooms
1
Bathrooms
1
Sqm
61.1
Floor
1
Energetic class
Not applicable
Property Conditions
New
Photos • Floorplans • Video
Photos
Options
Print Property sheet
Send property sheet by mail
Schedule a visit
RealEstate Brokers
Xiberras Joanie
+356 9985 2678
+356 9998 6779
+356 9998 6775
joanie.gozo@sensaramalta.com
Information request
Name *
Phone *
E-mail *
Request Details *
I authorize the processing of my personal data according Regolamento UE n. 679/2016 -
Privacy Policy
I authorize the processing of data for marketing purposes, promotional activities, commercial offers and market surveys.
Send
Share on
We also recommend
for Sale
St Pauls Bay - 2 Bedroom Apartment Highly Finished
358,500 €
for Sale
Paola - On Plan 1 Bedroom Apartment
173,000 €
for Sale
San Pawl il-Bahar - 4th Floor Studio Finished Apartment + Seaviews
230,500 €
Keep default settings X
Use of cookies
This site uses cookies. Our (own) cookies and those of our Partners (third party cookies) are used to offer you a unique experience with us. For this reason, together with our partners, we collect and process non-sensitive information (such as the identifier of your device or the pages you visit).
At any time you can delete, modify or verify the information you share in
Cookie preference
or in our
Cookie Policy
and
Privacy Policy
.
Necessary
Functional
Profiling
Analytics
Accept all
Decline all
Accept selected
Cookie preference