Toggle navigation
(+356) 2164 9500
(+356) 9998 6779
info@sensaramalta.com
Head Office - Sensara Malta
Triq Santa Marija, Safi
09.00 to 19.00 hrs
Monday to Saturday
Home
Properties
Sales
Rentals
Foreign
About us
Services
Contacts
Send your request
Previous
Next
380,000 €
CLICK HERE for DETAILED PHOTOS
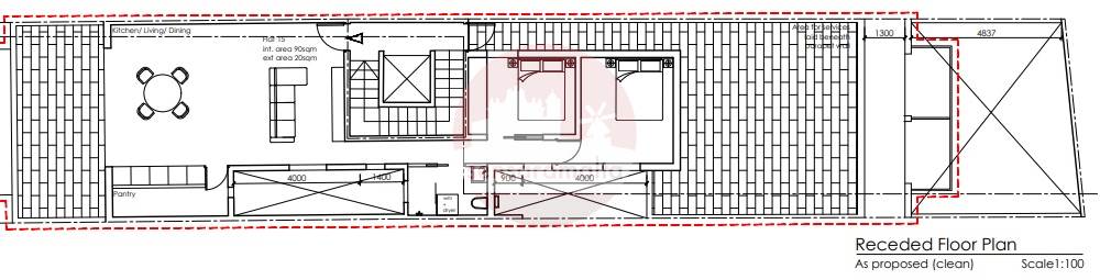
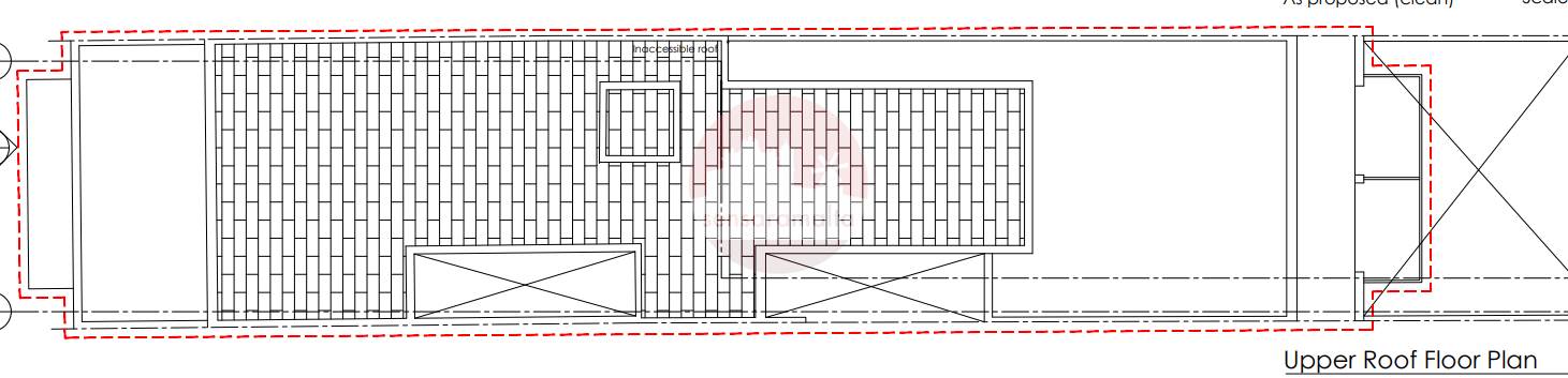
Bugibba - 2 Bedroom Shell Form Penthouse + Airspace On Plan
Penthouse for sale • Bugibba
New on the market two-bedroom Penthouse located in Bugibba, offered on plan.
This property boasts an open plan kitchen/dining/living, leading to a front terrace ideal for entertaining and enjoying distant sea views. The layout includes two-bedroom, a main bathroom, roof and airspace. Perfectly positioned close to all amenities, this penthouse is ideal for those seeking a comfortable home or a solid investment opportunity.
Being sold in shell form and is estimate to be ready by 2026.
Rooms and Features
Code
V021064
Locality
Bugibba
Property type
Penthouse
Price
380,000 €
Locals
1
Bedrooms
2
Bathrooms
1
Sqm
102
Terraces
1
Floor
6
Energetic class
Nondescript
Photos • Floorplans • Video
Photos
Options
Print Property sheet
Send property sheet by mail
Schedule a visit
RealEstate Brokers
Zahra Gaynor
+356 7933 5643
+356 9998 6775
+356 9998 6779
gaynor@sensaramalta.com
Information request
Name *
Phone *
E-mail *
Request Details *
I authorize the processing of my personal data according Regolamento UE n. 679/2016 -
Privacy Policy
I authorize the processing of data for marketing purposes, promotional activities, commercial offers and market surveys.
Send
Share on
We also recommend
for Sale
Gudja - Duplex 2 Bedroom Finished Penthouse On Plan
430,000 €
for Sale
Qormi - 2 Bedroom Finished Penthouse + Optional Garage
358,500 €
for Sale
Zabbar - 2 Bedroom Penthouse + Airspace
272,000 €
Keep default settings X
Use of cookies
This site uses cookies. Our (own) cookies and those of our Partners (third party cookies) are used to offer you a unique experience with us. For this reason, together with our partners, we collect and process non-sensitive information (such as the identifier of your device or the pages you visit).
At any time you can delete, modify or verify the information you share in
Cookie preference
or in our
Cookie Policy
and
Privacy Policy
.
Necessary
Functional
Profiling
Analytics
Accept all
Decline all
Accept selected
Cookie preference