Toggle navigation
(+356) 2164 9500
(+356) 9998 6779
info@sensaramalta.com
Head Office - Sensara Malta
Triq Santa Marija, Safi
09.00 to 19.00 hrs
Monday to Saturday
Home
Properties
Sales
Rentals
Foreign
About us
Services
Contacts
Send your request
Previous
Next
308,000 €
CLICK HERE for DETAILED PHOTOS
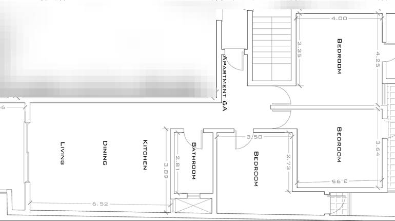
Siggiewi,3rd floor Finished 2 Bedroom Apartment with Terrace + Optional Garage
2 bedroom apartment for sale • Siggiewi
A New Development in Siggiewi, the project will consist of two maisonettes, six apartments, and one penthouse. Currently under construction
The property consists of 2 bedrooms at the front, served by a terrace, and a main bedroom with an en-suite, master bathroom, and an open-plan rear area.
Optional interconnected garages are also available starting from Eur 47,000
Prices include finishing, excluding Internal Doors and Bath.
Freehold.
Completion Date Approx April 2027
Rooms and Features
Code
V021027
Locality
Siggiewi
Property type
2 bedroom apartment
Price
308,000 €
Locals
1
Bedrooms
2
Bathrooms
2
Sqm
90
Terraces
1
Floor
3
Energetic class
Not applicable
Property Conditions
New
Photos • Floorplans • Video
Photos
Options
Print Property sheet
Send property sheet by mail
Schedule a visit
RealEstate Brokers
Schembri Maria Pawla
+356 7732 8183
+356 9998 6779
+356 9998 6775
pawla@sensaramalta.com
Information request
Name *
Phone *
E-mail *
Request Details *
I authorize the processing of my personal data according Regolamento UE n. 679/2016 -
Privacy Policy
I authorize the processing of data for marketing purposes, promotional activities, commercial offers and market surveys.
Send
Share on
We also recommend
for Sale
Luqa - 2 Bed,2 Bath Finished 3rd Flr Apartment
302,000 €
for Sale
Mosta, Already Built 1st floor 3 Bedroom Apartment with Terrace and Balconies
430,000 €
for Sale
Qormi - 2 Bedroom Finished Apartment On Plan
240,500 €
Keep default settings X
Use of cookies
This site uses cookies. Our (own) cookies and those of our Partners (third party cookies) are used to offer you a unique experience with us. For this reason, together with our partners, we collect and process non-sensitive information (such as the identifier of your device or the pages you visit).
At any time you can delete, modify or verify the information you share in
Cookie preference
or in our
Cookie Policy
and
Privacy Policy
.
Necessary
Functional
Profiling
Analytics
Accept all
Decline all
Accept selected
Cookie preference