Toggle navigation
(+356) 2164 9500
(+356) 9998 6779
info@sensaramalta.com
Head Office - Sensara Malta
Triq Santa Marija, Safi
09.00 to 19.00 hrs
Monday to Saturday
Home
Properties
Sales
Rentals
Foreign
About us
Services
Contacts
Send your request
Previous
Next
238,000 €
CLICK HERE for DETAILED PHOTOS
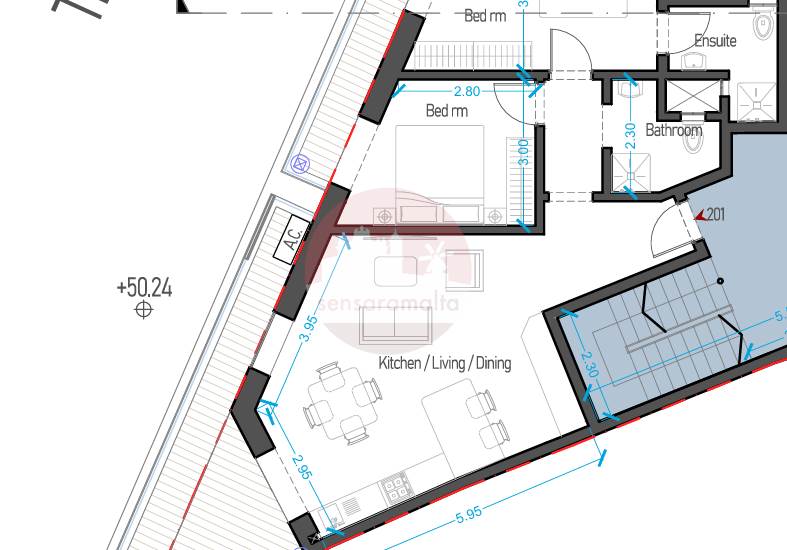
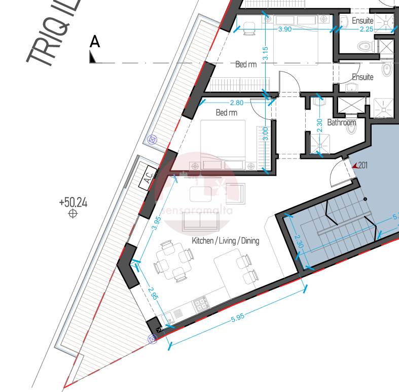
Fgura - 2 Bedroom Apartment On Plan
2 bedroom apartment for sale • Fgura
This on-plan second floor apartment in Fgura facing ODZ, offers a modern and functional layout, comprising a spacious open-plan kitchen, dining, and living area, two bedrooms (one of which includes an ensuite), and a main bathroom. The property also features two balconies, providing excellent outdoor space. To be sold in shell form, this apartment allows buyers the flexibility to complete the interior to their preferences. The property is expected to be ready by the end of 2027, making it an excellent opportunity for those seeking a customizable home in a developing area of Fgura. Optional garages are available at an extra price.
Rooms and Features
Code
V020992
Locality
Fgura
Property type
2 bedroom apartment
Price
238,000 €
Locals
1
Bedrooms
2
Bathrooms
2
Sqm
108
Balconies
2
Floor
2
Energetic class
Nondescript
Photos • Floorplans • Video
Photos
Options
Print Property sheet
Send property sheet by mail
Schedule a visit
RealEstate Brokers
Aguis Lorna
+356 9961 6121
+356 9998 6779
+356 2164 9500
lorna@sensaramalta.com
Information request
Name *
Phone *
E-mail *
Request Details *
I authorize the processing of my personal data according Regolamento UE n. 679/2016 -
Privacy Policy
I authorize the processing of data for marketing purposes, promotional activities, commercial offers and market surveys.
Send
Share on
We also recommend
for Sale
Fgura - 2 Bedroom Finished Apartment On Plan
307,000 €
for Sale
Zabbar - 2 Bedroom Apartment Finished - On Plan
289,000 €
for Sale
San Gwann - 2 Bedroom 1st Floor Finished Apartment Under Construction
307,000 €
Keep default settings X
Use of cookies
This site uses cookies. Our (own) cookies and those of our Partners (third party cookies) are used to offer you a unique experience with us. For this reason, together with our partners, we collect and process non-sensitive information (such as the identifier of your device or the pages you visit).
At any time you can delete, modify or verify the information you share in
Cookie preference
or in our
Cookie Policy
and
Privacy Policy
.
Necessary
Functional
Profiling
Analytics
Accept all
Decline all
Accept selected
Cookie preference