Toggle navigation
(+356) 2164 9500
(+356) 9998 6779
info@sensaramalta.com
Head Office - Sensara Malta
Triq Santa Marija, Safi
09.00 to 19.00 hrs
Monday to Saturday
Home
Properties
Sales
Rentals
Foreign
About us
Services
Contacts
Send your request
Previous
Next
609,000 €
CLICK HERE for DETAILED PHOTOS
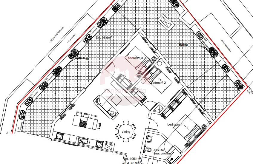
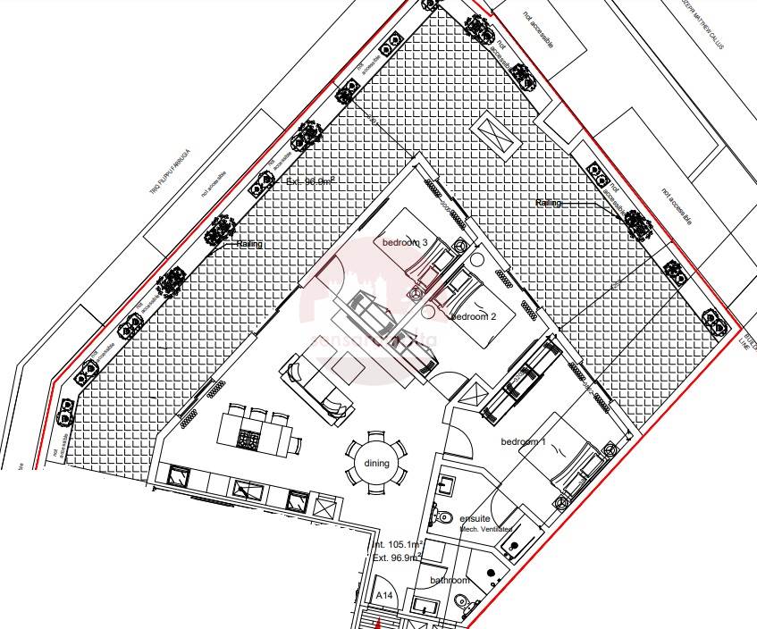
Zurrieq - 3 Bedroom Penthouse
Penthouse for sale • Zurrieq
Discover this three-bedroom Penthouse in Zurrieq on plan close to all amenities. This Penthouse consists of a spacious open plan kitchen/dining/living, three- bedrooms master with ensuite, main bathroom and a corner terrace. This Penthouse will be sold finished (excluding bathrooms and doors) and is estimate to be ready by June 2026.For more details or to schedule a viewing contact us today.
Rooms and Features
Code
V020825
Locality
Zurrieq
Property type
Penthouse
Price
609,000 €
Locals
1
Bedrooms
3
Bathrooms
2
Sqm
202.4
Terraces
1
Energetic class
Nondescript
Photos • Floorplans • Video
Photos
Options
Print Property sheet
Send property sheet by mail
Schedule a visit
RealEstate Brokers
Zahra Gaynor
+356 7933 5643
+356 9998 6775
+356 9998 6779
gaynor@sensaramalta.com
Information request
Name *
Phone *
E-mail *
Request Details *
I authorize the processing of my personal data according Regolamento UE n. 679/2016 -
Privacy Policy
I authorize the processing of data for marketing purposes, promotional activities, commercial offers and market surveys.
Send
Share on
We also recommend
for Sale
Mosta - 2 Bedroom Finished Penthouse
400,000 €
for Sale
Zurrieq - 202sqm 3 Bedroom Finished Penthouse + Airspace
575,000 €
for Sale
Birkirkara - 3 Bedroom Furnished Penthouse + Roof + Optional Garage
512,000 €
Keep default settings X
Use of cookies
This site uses cookies. Our (own) cookies and those of our Partners (third party cookies) are used to offer you a unique experience with us. For this reason, together with our partners, we collect and process non-sensitive information (such as the identifier of your device or the pages you visit).
At any time you can delete, modify or verify the information you share in
Cookie preference
or in our
Cookie Policy
and
Privacy Policy
.
Necessary
Functional
Profiling
Analytics
Accept all
Decline all
Accept selected
Cookie preference