Toggle navigation
(+356) 2164 9500
(+356) 9998 6779
info@sensaramalta.com
Head Office - Sensara Malta
Triq Santa Marija, Safi
09.00 to 19.00 hrs
Monday to Saturday
Home
Properties
Sales
Rentals
Foreign
About us
Services
Contacts
Send your request
Previous
Next
349,000 €
CLICK HERE for DETAILED PHOTOS
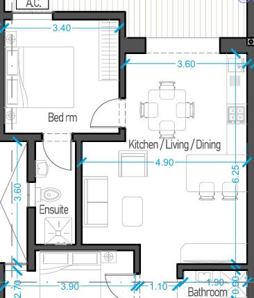
Mosta - 2 Bedroom Apartment Finished - On Plan
2 bedroom apartment for sale • Mosta
Forming part of a small block of apartments is being offered on plan and to be completed by the year 2026, situated in a sought-after area and offered finished excluding bathrooms and internal doors.
Its squarish layout comprises an open plan kitchen/living/dining overlooking a large front terrace, 2 bedrooms, main with ensuite, a bathroom, and a rare balcony.
The apartment is Freehold.
Rooms and Features
Code
V020094
Locality
Mosta
Property type
2 bedroom apartment
Price
349,000 €
Locals
1
Bedrooms
2
Bathrooms
2
Sqm
90
Balconies
2
Floor
1
Energetic class
Not applicable
Property Conditions
Under Construction
Photos • Floorplans • Video
Photos
Options
Print Property sheet
Send property sheet by mail
Schedule a visit
RealEstate Brokers
Zahra Gaynor
+356 7933 5643
+356 9998 6775
+356 9998 6779
gaynor@sensaramalta.com
Information request
Name *
Phone *
E-mail *
Request Details *
I authorize the processing of my personal data according Regolamento UE n. 679/2016 -
Privacy Policy
I authorize the processing of data for marketing purposes, promotional activities, commercial offers and market surveys.
Send
Share on
We also recommend
for Sale
Mosta, Already Built ** Finished 2 Bedroom Apartment with optional Garages
333,000 €
for Sale
Mosta, Already Built ** Finished 2 Bedroom Apartment with Terrace & Balcony ** optional Garages
343,000 €
for Sale
Fgura - 2 Bedroom Apartment On Plan
238,000 €
Keep default settings X
Use of cookies
This site uses cookies. Our (own) cookies and those of our Partners (third party cookies) are used to offer you a unique experience with us. For this reason, together with our partners, we collect and process non-sensitive information (such as the identifier of your device or the pages you visit).
At any time you can delete, modify or verify the information you share in
Cookie preference
or in our
Cookie Policy
and
Privacy Policy
.
Necessary
Functional
Profiling
Analytics
Accept all
Decline all
Accept selected
Cookie preference