Toggle navigation
(+356) 2164 9500
(+356) 9998 6779
info@sensaramalta.com
Head Office - Sensara Malta
Triq Santa Marija, Safi
09.00 to 19.00 hrs
Monday to Saturday
Home
Properties
Sales
Rentals
Foreign
About us
Services
Contacts
Send your request
Previous
Next
394,500 €
CLICK HERE for DETAILED PHOTOS
Mellieha - 3 bedroom Apartment + 2 Balconies
3+ bedroom apartment for sale • Mellieha
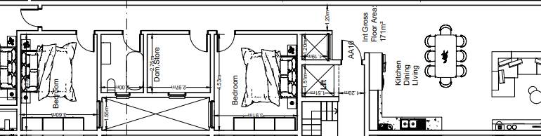
In quite village of Mellieha comes this new development currently under construction and to be ready in shell form by end of the year. Set on the 2 floor in a block of 10 units comes this 3 bedroom Apartment.
Set on a longish layout one finds an open plan kitchen/living/dining with a well sized front balcony and the 1 bedroom also on the facade, further in one finds the main bathroom 2 bedroom and the main bedroom with an ensuite and a walk-in-wardrobe both bedrooms are connected with a longish back balcony.
2 car garage is also available at an extra cost.
Freehold
Rooms and Features
Code
V019970
Locality
Mellieha
Property type
3+ bedroom apartment
Price
394,500 €
Locals
1
Bedrooms
3
Bathrooms
2
Sqm
158
Garages
1
Balconies
2
Floor
2
Energetic class
Nondescript
Property Conditions
Under Construction
Photos • Floorplans • Video
Photos
Options
Print Property sheet
Send property sheet by mail
Schedule a visit
RealEstate Brokers
Grima Vince
+356 9940 5538
+356 9998 6779
+356 2164 9500
vince@sensaramalta.com
Grima Marthese
+356 7929 1233
+356 9998 6779
+356 9998 6775
marthese@sensaramalta.com
Information request
Name *
Phone *
E-mail *
Request Details *
I authorize the processing of my personal data according Regolamento UE n. 679/2016 -
Privacy Policy
I authorize the processing of data for marketing purposes, promotional activities, commercial offers and market surveys.
Send
Share on
We also recommend
for Sale
Pieta - 3 Bedroom 5th Floor Finished Apartment On Plan
819,000 €
for Sale
Xemxija - 130sqm 3 Double Bedroom Fully Furnished Apartment + Optional Garage
362,000 €
for Sale
Marsalforn Gozo - 3 Bedroom Furnished Apartment
260,000 €
Keep default settings X
Use of cookies
This site uses cookies. Our (own) cookies and those of our Partners (third party cookies) are used to offer you a unique experience with us. For this reason, together with our partners, we collect and process non-sensitive information (such as the identifier of your device or the pages you visit).
At any time you can delete, modify or verify the information you share in
Cookie preference
or in our
Cookie Policy
and
Privacy Policy
.
Necessary
Functional
Profiling
Analytics
Accept all
Decline all
Accept selected
Cookie preference