Toggle navigation
(+356) 2164 9500
(+356) 9998 6779
info@sensaramalta.com
Head Office - Sensara Malta
Triq Santa Marija, Safi
09.00 to 19.00 hrs
Monday to Saturday
Home
Properties
Sales
Rentals
Foreign
About us
Services
Contacts
Send your request
Previous
Next
410,000 €
CLICK HERE for DETAILED PHOTOS
San Giljan - 3BDR 1st Floor Apt, Roof. Yard
3+ bedroom apartment for sale • San Giljan
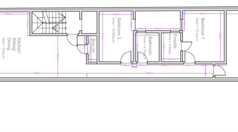
In St.Julian's comes a first-floor three-bedroom apartment in a block of only four units, enjoying ownership of circa 50 sqm of roof, airspace, and a well-sized back yard.
Upon entering the property, one finds two bedrooms facing the front of the apartment with balconies, a main bathroom, a box room which can be converted into a second bathroom or ensuite, a third bedroom, a kitchen/living/dining, and back yard.
Part ownership of roof and airspace. No lift and in need of modernisation, yet habitable.
Rooms and Features
Code
V019714
Locality
San Giljan
Property type
3+ bedroom apartment
Price
410,000 €
Locals
1
Bedrooms
3
Bathrooms
1
Sqm
140
Terraces
1
Floor
1
Energetic class
Not applicable
Property Conditions
Habitable
Photos • Floorplans • Video
Photos
Options
Print Property sheet
Send property sheet by mail
Schedule a visit
RealEstate Brokers
Schembri Maria Pawla
+356 7732 8183
+356 9998 6779
+356 9998 6775
pawla@sensaramalta.com
Information request
Name *
Phone *
E-mail *
Request Details *
I authorize the processing of my personal data according Regolamento UE n. 679/2016 -
Privacy Policy
I authorize the processing of data for marketing purposes, promotional activities, commercial offers and market surveys.
Send
Share on
We also recommend
for Sale
Mellieha - 1st Floor 3 Bedroom Finished Apartment + Optional Garage
330,000 €
for Sale
Xewkija - 3 Bedroom 3 Bathroom Apartment
205,000 €
for Sale
Hamrun/Msida - 3 Bedroom 180 sqm Furnished Apartment
369,000 €
Keep default settings X
Use of cookies
This site uses cookies. Our (own) cookies and those of our Partners (third party cookies) are used to offer you a unique experience with us. For this reason, together with our partners, we collect and process non-sensitive information (such as the identifier of your device or the pages you visit).
At any time you can delete, modify or verify the information you share in
Cookie preference
or in our
Cookie Policy
and
Privacy Policy
.
Necessary
Functional
Profiling
Analytics
Accept all
Decline all
Accept selected
Cookie preference