Toggle navigation
(+356) 2164 9500
(+356) 9998 6779
info@sensaramalta.com
Head Office - Sensara Malta
Triq Santa Marija, Safi
09.00 to 19.00 hrs
Monday to Saturday
Home
Properties
Sales
Rentals
Foreign
About us
Services
Contacts
Send your request
Previous
Next
256,000 €
CLICK HERE for DETAILED PHOTOS
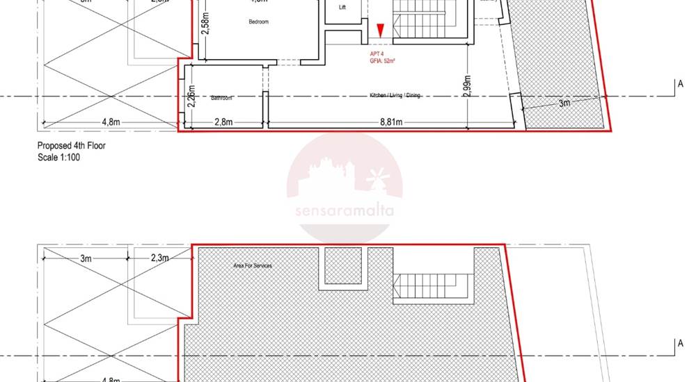
Marsa - 1 Bedroom Penthouse - Shell Form
Penthouse for sale • Marsa
Works commence next month - 1 Bedroom Penthouse situated in Marsa to be sold in Shell Form. Estimated to be built within 4months.
Consisting of an Open Plan Kitchen/Living/Dining overlooking a terrace, main bathroom, main bedroom and a laundry room.
Optional Finished excl bathrooms and internal doors for the price of €287k
Freehold.
Rooms and Features
Code
V019414
Locality
Marsa
Property type
Penthouse
Price
256,000 €
Locals
1
Bedrooms
1
Bathrooms
1
Sqm
52
Energetic class
Nondescript
Photos • Floorplans • Video
Photos
Options
Print Property sheet
Send property sheet by mail
Schedule a visit
RealEstate Brokers
Jenkins Rita
+356 7712 7772
+356 9998 6779
+356 9998 6775
rita@sensaramalta.com
Information request
Name *
Phone *
E-mail *
Request Details *
I authorize the processing of my personal data according Regolamento UE n. 679/2016 -
Privacy Policy
I authorize the processing of data for marketing purposes, promotional activities, commercial offers and market surveys.
Send
Share on
We also recommend
for Sale
Pieta - 2 PROPERTIES FOR THE PRICE OF 1, presently a Penthouse
604,000 €
for Sale
Ghaxaq - 2 Bedroom Fully Finished Penthouse + Space for pool
410,000 €
for Sale
Nadur - Penthouse 3 Bedroom + Airspace
369,000 €
Keep default settings X
Use of cookies
This site uses cookies. Our (own) cookies and those of our Partners (third party cookies) are used to offer you a unique experience with us. For this reason, together with our partners, we collect and process non-sensitive information (such as the identifier of your device or the pages you visit).
At any time you can delete, modify or verify the information you share in
Cookie preference
or in our
Cookie Policy
and
Privacy Policy
.
Necessary
Functional
Profiling
Analytics
Accept all
Decline all
Accept selected
Cookie preference