Toggle navigation
(+356) 2164 9500
(+356) 9998 6779
info@sensaramalta.com
Head Office - Sensara Malta
Triq Santa Marija, Safi
09.00 to 19.00 hrs
Monday to Saturday
Home
Properties
Sales
Rentals
Foreign
About us
Services
Contacts
Send your request
Previous
Next
384,000 €
CLICK HERE for DETAILED PHOTOS
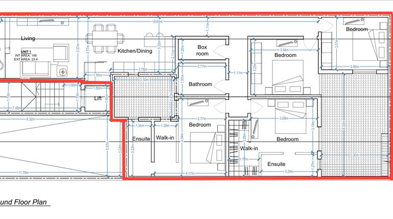
Qormi - 3 Bedoom Maisonette Ready Built
Maisonette for sale • Qormi
In Qormi comes this new block of 5 Units served with lift. This development is currently being constructed and this maisonette is ready built, being offered finished excluding Bathrooms and internal doors.
Optional Garages:
Garage No 1 - 2-Car Garage - €80k
Garage No 2 - 1-Car Garage - €40k
Garage No 3 - 2- Car Garage - €80k
Gargae No 4 - 2- Car Garage - €86k
Rooms and Features
Code
V019338
Locality
Qormi
Property type
Maisonette
Price
384,000 €
Locals
1
Bedrooms
3
Bathrooms
2
Sqm
148
Energetic class
Nondescript
Photos • Floorplans • Video
Photos
Options
Print Property sheet
Send property sheet by mail
Schedule a visit
RealEstate Brokers
Vella Ludric
+356 7909 1346
+356 9998 6779
+356 9998 6775
ludric@sensaramalta.com
Information request
Name *
Phone *
E-mail *
Request Details *
I authorize the processing of my personal data according Regolamento UE n. 679/2016 -
Privacy Policy
I authorize the processing of data for marketing purposes, promotional activities, commercial offers and market surveys.
Send
Share on
We also recommend
for Sale
Swieqi - 1st Floor 3 Bedroom Maisonette + Roof + Garage
870,000 €
for Sale
Birkirkara limits Of Iklin * Circa 223sqm Ground Floor Maisonette, yard pool and Optional Garage
630,000 €
for Sale
Zabbar - 4 Bedroom GF Maisonette Finished - On Plan
425,000 €
Keep default settings X
Use of cookies
This site uses cookies. Our (own) cookies and those of our Partners (third party cookies) are used to offer you a unique experience with us. For this reason, together with our partners, we collect and process non-sensitive information (such as the identifier of your device or the pages you visit).
At any time you can delete, modify or verify the information you share in
Cookie preference
or in our
Cookie Policy
and
Privacy Policy
.
Necessary
Functional
Profiling
Analytics
Accept all
Decline all
Accept selected
Cookie preference