Toggle navigation
(+356) 2164 9500
(+356) 9998 6779
info@sensaramalta.com
Head Office - Sensara Malta
Triq Santa Marija, Safi
09.00 to 19.00 hrs
Monday to Saturday
Home
Properties
Sales
Rentals
Foreign
About us
Services
Contacts
Send your request
Previous
Next
308,000 €
CLICK HERE for DETAILED PHOTOS
Paola - 1st Flr Maisonette + Backyard - Furnished
Maisonette for sale • Paola
An almost fully furnished first floor maisonette situated in Paola
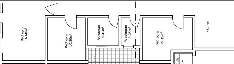
Property consisting of a sitting room, main bedroom with balcony on the facade, a wider than usual corridor, double bedroom with an internal yard, main bathroom, another single bedroom and a separate kitchen/dining overlooking the backyard. Freehold.
Rooms and Features
Code
V017736
Locality
Paola
Property type
Maisonette
Price
308,000 €
Locals
1
Bedrooms
3
Bathrooms
1
Sqm
130
Balconies
1
Terraces
1
Energetic class
Nondescript
Photos • Floorplans • Video
Photos
Options
Print Property sheet
Send property sheet by mail
Schedule a visit
RealEstate Brokers
Jenkins Rita
+356 7712 7772
+356 9998 6779
+356 9998 6775
rita@sensaramalta.com
Information request
Name *
Phone *
E-mail *
Request Details *
I authorize the processing of my personal data according Regolamento UE n. 679/2016 -
Privacy Policy
I authorize the processing of data for marketing purposes, promotional activities, commercial offers and market surveys.
Send
Share on
We also recommend
for Sale
Siggiewi - 3 Bedroom Ground Floor Maisonette Ready Built
420,000 €
for Sale
Mosta - 3 Bedroom Maisonette Ready Built
326,000 €
for Sale
Marsascala - Furnished 2 Bedroom Elevated Maisonette + Yard + Back Terrace
327,000 €
Keep default settings X
Use of cookies
This site uses cookies. Our (own) cookies and those of our Partners (third party cookies) are used to offer you a unique experience with us. For this reason, together with our partners, we collect and process non-sensitive information (such as the identifier of your device or the pages you visit).
At any time you can delete, modify or verify the information you share in
Cookie preference
or in our
Cookie Policy
and
Privacy Policy
.
Necessary
Functional
Profiling
Analytics
Accept all
Decline all
Accept selected
Cookie preference