Toggle navigation
(+356) 2164 9500
(+356) 9998 6779
info@sensaramalta.com
Head Office - Sensara Malta
Triq Santa Marija, Safi
09.00 to 19.00 hrs
Monday to Saturday
Home
Properties
Sales
Rentals
Foreign
About us
Services
Contacts
Send your request
Previous
Next
379,000 €
CLICK HERE for DETAILED PHOTOS
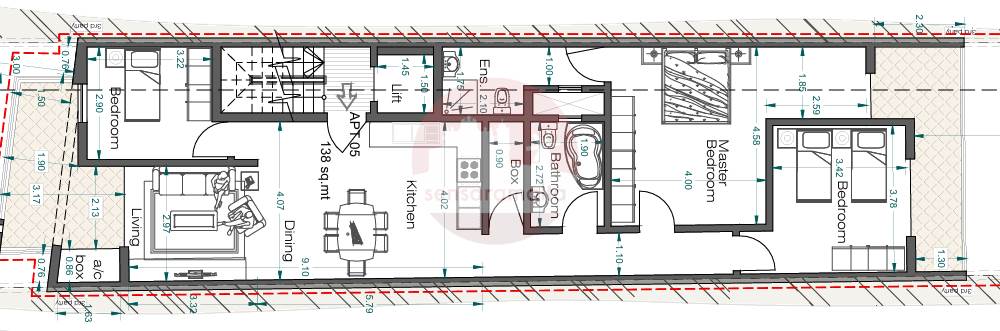
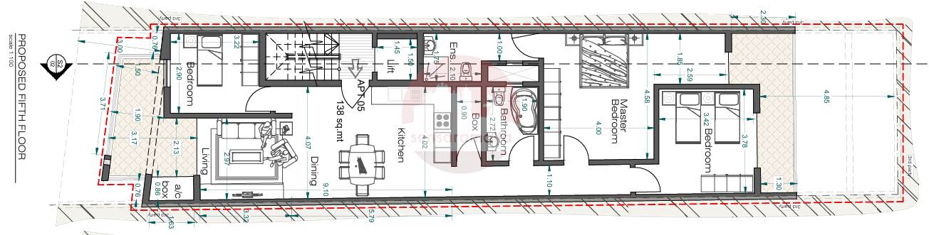
San Pawl il-Bahar - 5th Floor 3 Bedroom Apartment / Finished
3+ bedroom apartment for sale • San Pawl il-Bahar
In the St Paul Bay Topaz Hotel Area, comes this 5th Floor 3 Bedroom Apartment, Served with Lift, the block is already built and is being offered finished excluding bathrooms and internal doors.
Consists of 3 Bedrooms (Main Bedroom with Ensuite), open plan Kitchen / Dining / Living overlooking its front balcony, Boxroom, main Bathroom, and back terrace
The property owns perpetual Revisable ground rent which can be redeemed
Rooms and Features
Code
V017221
Locality
San Pawl il-Bahar
Property type
3+ bedroom apartment
Price
379,000 €
Locals
1
Bedrooms
3
Bathrooms
2
Sqm
138
Terraces
2
Floor
3
Energetic class
Nondescript
Photos • Floorplans • Video
Photos
Options
Print Property sheet
Send property sheet by mail
Schedule a visit
RealEstate Brokers
Schembri Josianne
+356 7782 4222
+356 9998 6779
+356 9998 6775
josianne@sensaramalta.com
Information request
Name *
Phone *
E-mail *
Request Details *
I authorize the processing of my personal data according Regolamento UE n. 679/2016 -
Privacy Policy
I authorize the processing of data for marketing purposes, promotional activities, commercial offers and market surveys.
Send
Share on
We also recommend
for Sale
Mosta - 1st Floor 3 Bedroom XXL Finished Apartment On Plan
573,000 €
for Sale
Msida - 3 Bedroom Finished 3rd Floor Apartment On Plan
352,000 €
for Sale
Ghaxaq - 3 Bedroom Finished Ground Floor Maisonette On Plan
332,500 €
Keep default settings X
Use of cookies
This site uses cookies. Our (own) cookies and those of our Partners (third party cookies) are used to offer you a unique experience with us. For this reason, together with our partners, we collect and process non-sensitive information (such as the identifier of your device or the pages you visit).
At any time you can delete, modify or verify the information you share in
Cookie preference
or in our
Cookie Policy
and
Privacy Policy
.
Necessary
Functional
Profiling
Analytics
Accept all
Decline all
Accept selected
Cookie preference