Toggle navigation
(+356) 2164 9500
(+356) 9998 6779
info@sensaramalta.com
Head Office - Sensara Malta
Triq Santa Marija, Safi
09.00 to 19.00 hrs
Monday to Saturday
Home
Properties
Sales
Rentals
Foreign
About us
Services
Contacts
Send your request
Previous
Next
365,000 €
CLICK HERE for DETAILED PHOTOS
Mosta - 2 Bedroom Apartment +Finished
2 bedroom apartment for sale • Mosta
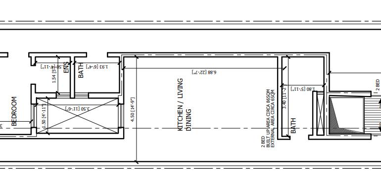
Centrally located in Mosta, close to all daily amenities such as pharmacies, supermarkets, and shops, comes this two-bedroom apartment, a newly built apartment located on the 2nd floor. This apartment is being offered finished, excluding bathrooms and internal doors.
Comprises a kitchen, living, and dining area overlooking a front terrace, a main bathroom, a master bedroom with its own ensuite and balcony, and another double bedroom having a back balcony. Finishes are being carried out. Served with lift and Freehold
An optional four-car garage is being offered at €180,000.
Rooms and Features
Code
V014378
Locality
Mosta
Property type
2 bedroom apartment
Price
365,000 €
Locals
1
Bathrooms
2
Sqm
95
Balconies
2
Terraces
1
Floor
2
Energetic class
Not applicable
Property Conditions
New
Accessories:
Elevator
Photos • Floorplans • Video
Photos
Options
Print Property sheet
Send property sheet by mail
Schedule a visit
RealEstate Brokers
Hughes Jeffrey
+356 9980 0004
+356 9998 6779
+356 9998 6775
hughes@sensaramalta.com
Information request
Name *
Phone *
E-mail *
Request Details *
I authorize the processing of my personal data according Regolamento UE n. 679/2016 -
Privacy Policy
I authorize the processing of data for marketing purposes, promotional activities, commercial offers and market surveys.
Send
Share on
We also recommend
for Sale
Msida - 2 Bedroom Second Floor Finished Apartment On Plan
302,000 €
for Sale
Birkirkara - 2 Bedroom 3rd floor Finished Apartment On Plan
328,000 €
for Sale
Naxxar - 2 Bedroom 2nd Floor Fully Finished Apartment On Plan
292,000 €
Keep default settings X
Use of cookies
This site uses cookies. Our (own) cookies and those of our Partners (third party cookies) are used to offer you a unique experience with us. For this reason, together with our partners, we collect and process non-sensitive information (such as the identifier of your device or the pages you visit).
At any time you can delete, modify or verify the information you share in
Cookie preference
or in our
Cookie Policy
and
Privacy Policy
.
Necessary
Functional
Profiling
Analytics
Accept all
Decline all
Accept selected
Cookie preference