Toggle navigation
(+356) 2164 9500
(+356) 9998 6779
info@sensaramalta.com
Head Office - Sensara Malta
Triq Santa Marija, Safi
09.00 to 19.00 hrs
Monday to Saturday
Home
Properties
Sales
Rentals
Foreign
About us
Services
Contacts
Send your request
Previous
Next
423,000 €
CLICK HERE for DETAILED PHOTOS
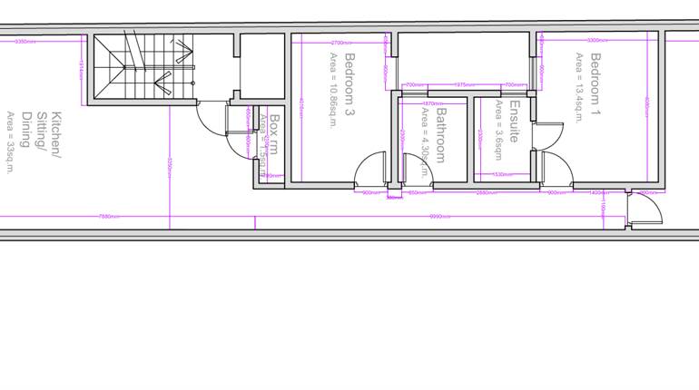
Qawra - 3 Bedroom Apartment+ Country Views
3+ bedroom apartment for sale • Qawra
Situated in a new development in Qawra, served with lift, comes this apartment on the 5 floor.
Comprising of an open-plan kitchen/living/dining area, 3 bedrooms (main with ensuite), guest bathroom and two balconies.
Apartment will be sold finished excluding bathrooms and doors.
Estimated to be finished by end of 2024
Rooms and Features
Code
V007094
Locality
Qawra
Property type
3+ bedroom apartment
Price
423,000 €
Locals
1
Bedrooms
3
Sqm
124
Balconies
1
Terraces
1
Floor
5
Energetic class
Nondescript
Photos • Floorplans • Video
Photos
Options
Print Property sheet
Send property sheet by mail
Schedule a visit
Information request
Name *
Phone *
E-mail *
Request Details *
I authorize the processing of my personal data according Regolamento UE n. 679/2016 -
Privacy Policy
I authorize the processing of data for marketing purposes, promotional activities, commercial offers and market surveys.
Send
Share on
We also recommend
for Sale
Birkirkara - 1st Floor 3 Bedroom Highly Furnished Apartment + 2 Garages
540,000 €
for Sale
Xewkija - 3 Bedroom 3 Bathroom Apartment
210,000 €
for Sale
Balzan - First Floor Finished 3 Bedroom Apt + Outdoor, On Plan
358,000 €
Keep default settings X
Use of cookies
This site uses cookies. Our (own) cookies and those of our Partners (third party cookies) are used to offer you a unique experience with us. For this reason, together with our partners, we collect and process non-sensitive information (such as the identifier of your device or the pages you visit).
At any time you can delete, modify or verify the information you share in
Cookie preference
or in our
Cookie Policy
and
Privacy Policy
.
Necessary
Functional
Profiling
Analytics
Accept all
Decline all
Accept selected
Cookie preference